169 Particular Dois
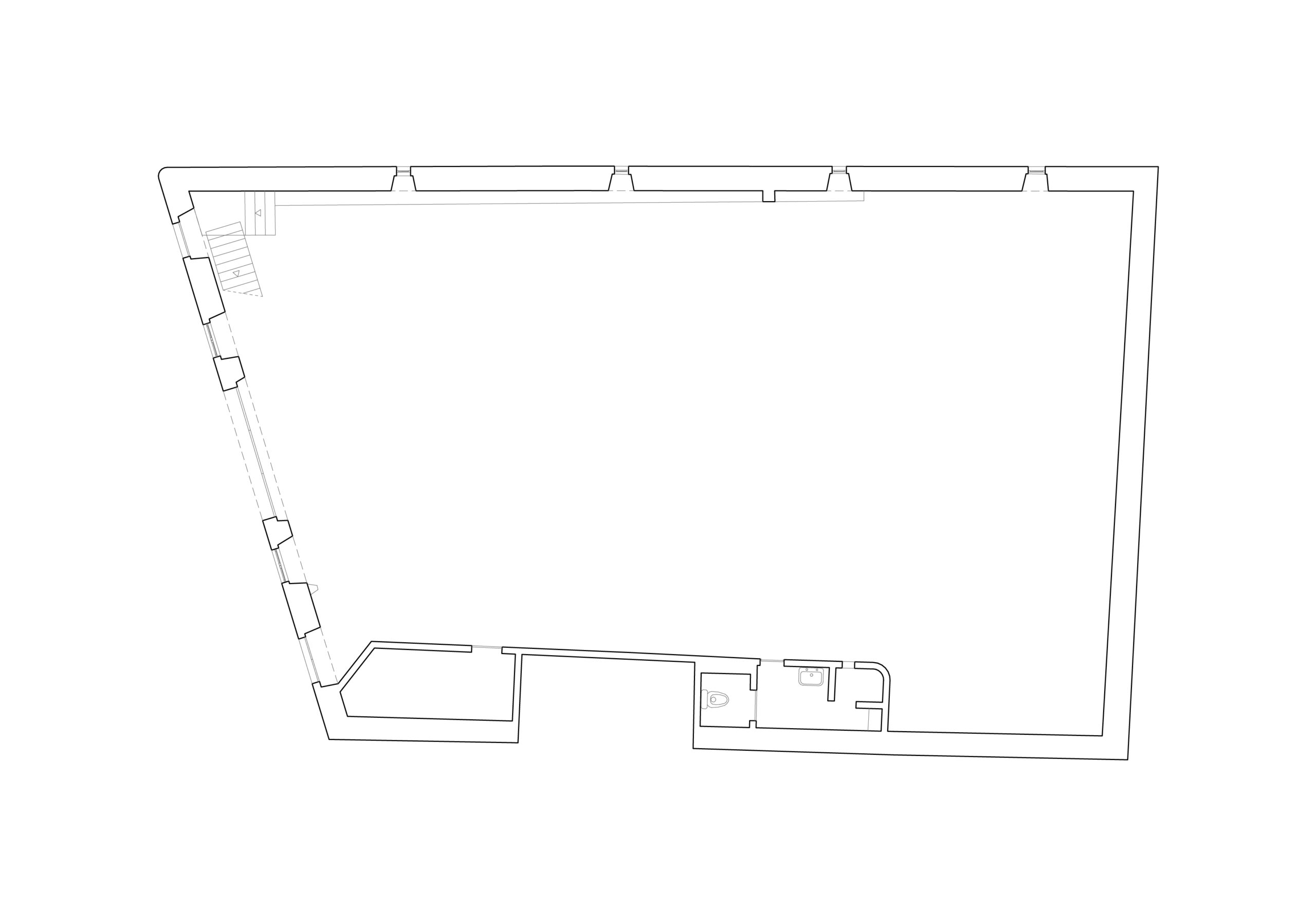
Em 1889, os terrenos pertencentes a diversas quintas de Campolide foram loteados, originando a edificação de três vilas operárias: Amarante, Cabaço e Maia. É na Vila Maia que se encontra o “Barracão”, de alvenaria, coberto com telha de Marselha, pavimento em terra batida, destinado à recolha de materiais, ferramentas e carroças – construção erguida na década de 1920.
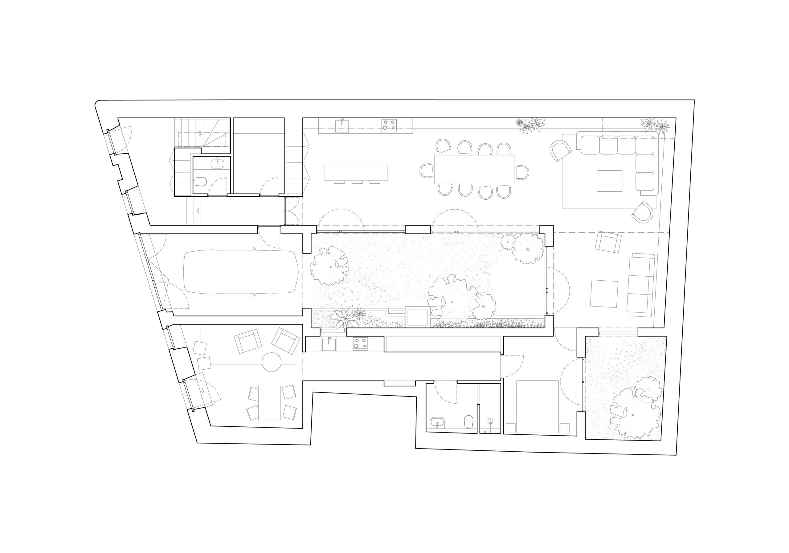
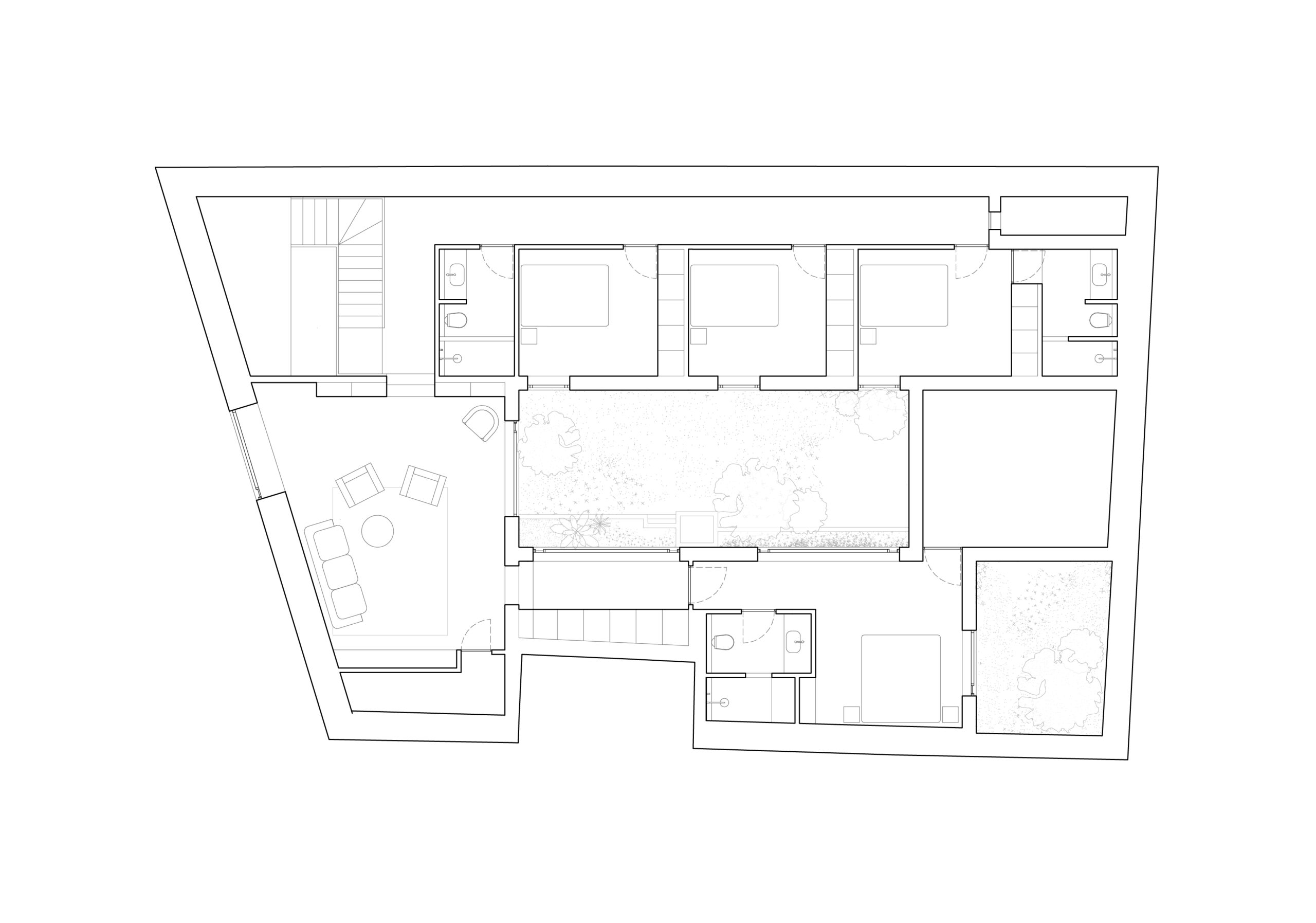
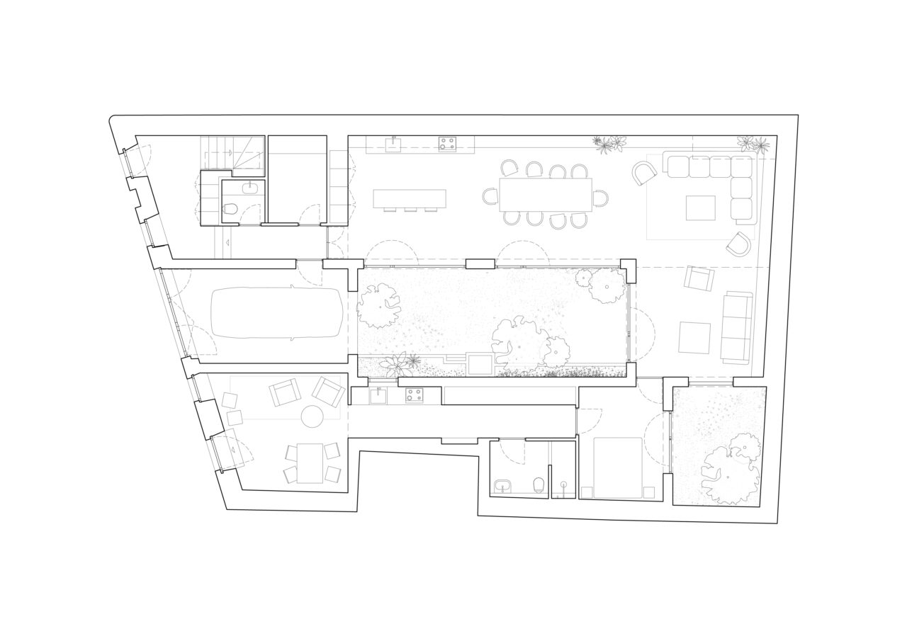
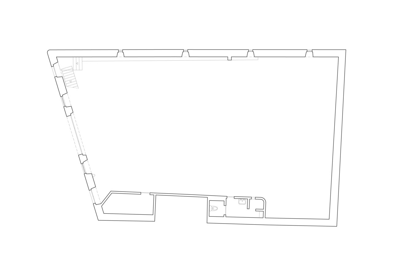
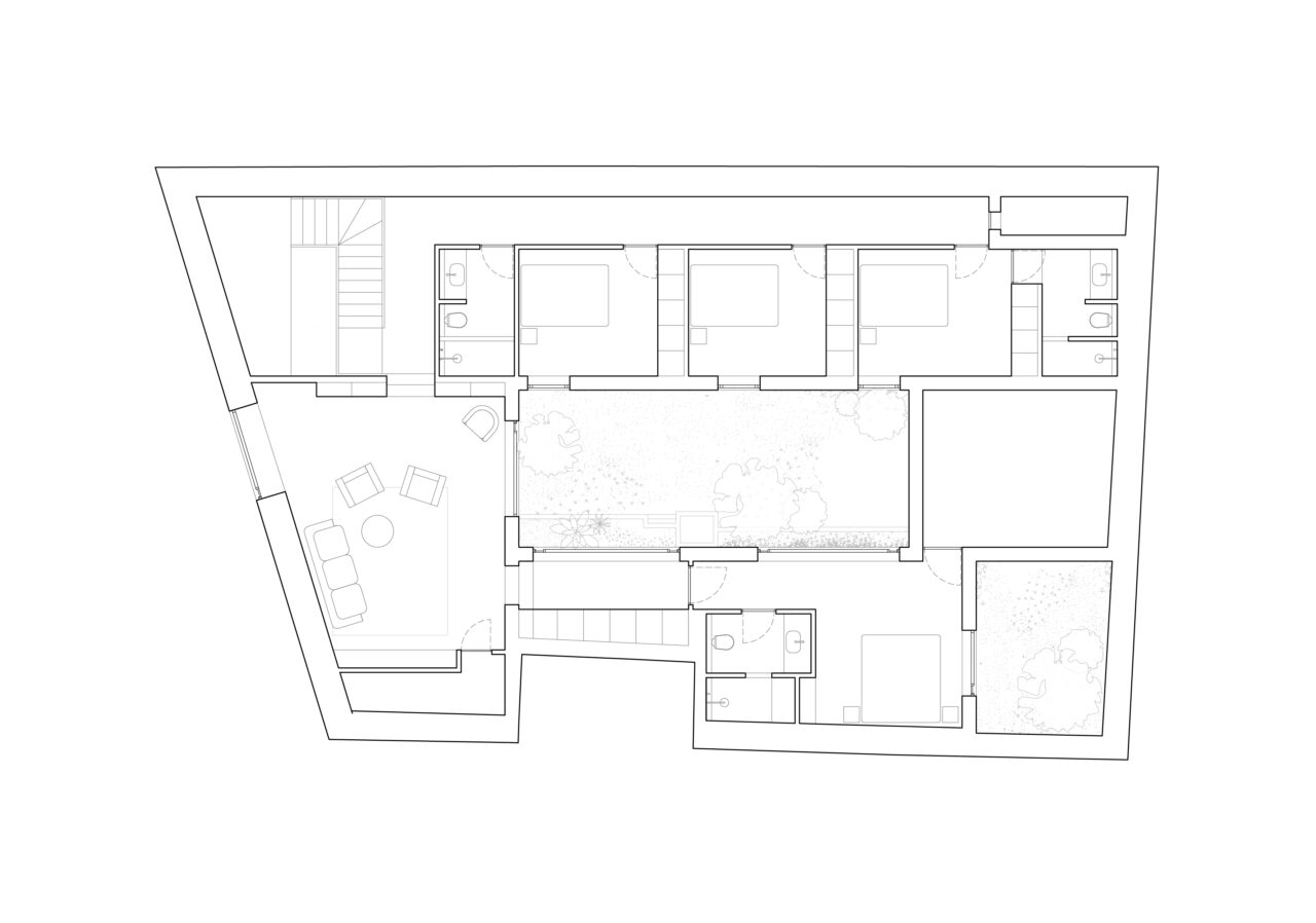
A intervenção parte desta preexistência: um volume com uma única frente de 14 metros, 23 metros de profundidade máxima e 267 m² de área interior, com cobertura de duas águas. As fachadas laterais e posterior são cegas, concentrando-se as aberturas no alçado principal voltado à rua. Esta condição determinou um dos principais desafios do projeto – introduzir luz e ventilação no interior profundo do edifício. A criação de pátios e claraboias reorganizam espacialmente os dois pisos e estabelece novas relações visuais e funcionais entre compartimentos, assegurando a iluminação e ventilação.
A tipologia adotada referencia-se na casa romana com impluvium. O pátio central assume-se como elemento estruturador da vida doméstica, articulando continuidade espacial entre o interior e o exterior. A casa desenvolve-se em dois pisos, com as zonas públicas no piso térreo, tendo havido lugar a um rebaixamento da cota do piso, de modo a ter um maior pé-direito. As zonas privadas situam-se no piso superior, tirando partido da volumetria da cobertura.
localização campolide, lisboa
projeto 2018
cliente privado
área 411 m2
arquitetura josé adrião – coordenação
ana grácio – chefe de projeto
gonçalo diniz, leonardo marchesi
estabilidade ncrep
especialidades daj – estudos e projetos
fotografia existente nuno almendra
fotografia concluído lourenço abreu



























