038 Fanqueiros 81

Prémios FAD 2012. Projeto Fanqueiros 81 vencedor dos Prémios FAD de 2012, Prémio Ibérico de Arquitetura e Design, na categoria de Interiorismo, Prémio Opinião.
Prémio Vasco Vilalva 2012. Projeto Fanqueiros 81 vencedor do prémio atribuído pela Fundação Calouste Gulbenkian para a recuperação de património em Portugal.
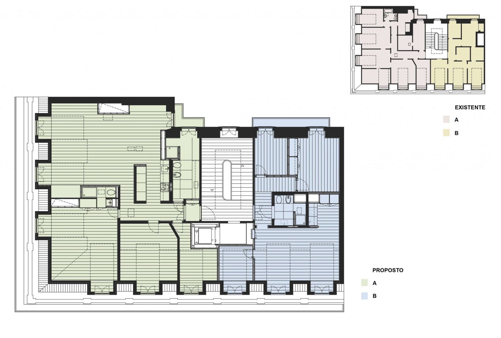
A intervenção teve como objetivo a adaptação e recuperação de um edifício Pombalino para uma unidade de apartamentos em regime de aluguer de curta duração. Situado no gaveto da Rua dos Fanqueiros com a Rua da Conceição, em plena Baixa de Lisboa, o edifício teve desde a sua construção no fim do século XVIII grandes alterações que modificaram profundamente o carácter original da maioria das suas frações. Como estratégia de projeto e de modo a minimizar custos, decidiu-se aceitar a condição heterogénea do edifício existente. Definiu-se a intervenção como uma nova adição em continuidade com a sua história incorporando as alterações de diferentes tempos, pondo de parte uma possível operação de restauro. As principais ações determinadas pelo projeto foram: a alteração da tipologia de dois para três apartamentos por piso, a introdução de um elevador, a substituição de todas as infraestruturas e a conservação de uma parte substancial dos seus elementos construtivos tais como os soalhos, os tetos em saia e camisa, as caixilharias de madeira, os azulejos do exterior e interior e as portas interiores. Os remates necessários e os “remendos” foram assumidos como tal.
localização rua dos fanqueiros, 73-85, lisboa, portugal
projeto 2007
construção 2010 – 2011
cliente privado
área de construção 1 391,70 m2
arquitetura josé adrião – coordenação
fase 1 tiago mota – chefe de projeto
luís valente, rui didier
fase 2 carla gonçalves – chefe de projeto
joão albuquerque matos, margarida lameiro, ricardo aboim inglez, rute ribeiro, sara jardim
estabilidade ara – alves rodrigues e associados
fernando rodrigues, maria manuel sá pereira
especialidades acribia
josé andrade, paulo rodrigues, mauro carvalho
condições técnicas especiais nunes – medem
paulo nunes
empreiteiro geral paviana construções, lda
fiscalização grese – estudos, projectos e gestão de obras
ramalho ortigão
interseta – arquitectura, design e gestão de obra
nelson rangel
fotografia fg + sg – fotografia de arquitectura
prémios vasco vilalva 2012 – fad interiorismo 2012
Ler mais























